Apartamenty Paderewskiego 10 Pruszków
Zapraszamy Państwa do zapoznania się z naszą inwestycją, która wkrótce zostanie oddana do użytkowania. Dużym atutem jest bliskość pętli autobusowej Piastów-Ogińskiego (200 m), z której można dojechać do stacji PKP Piastów w 10 minut. Na ten moment dojście do pętli prowadzi ścieżką, ale w planie miejscowym przewidziana jest droga.
Inwestycja obejmuje 12 budynków dwulokalowych w zabudowie szeregowej. Łącznie 24 lokale:
- 12 z poddaszami (54 m2, po adaptacji poddaszy ok. 87 m2)
- 12 lokali o powierzchni 44–53 m2 z ogródkami ok. 30 m2
Budynki posadowiono na płycie fundamentowej. Zwiększa to trwałość konstrukcji i ogranicza ryzyko powstawania rys, które dość często pojawiają się przy standardowych fundamentach. Dzięki temu budynki są lepiej docieplone.
Inwestycja znajduje się w II strefie ZTM. Mieszkańcy mogą zakupić bilet metropolitalny (obejmujący też transport koleją) w obniżonej cenie 120 zł miesięcznie, zastępujący droższe warszawskie bilety okresowe na strefy I+II.
Przewidywana wysokość opłat administracyjnych to ok. 280 zł miesięcznie (w tym wywóz odpadów komunalnych dla trzyosobowej rodziny, oświetlenie i sprzątanie części wspólnych, fundusz remontowy).
Każde mieszkanie będzie posiadało indywidualne przyłącza mediów: prąd, gaz, internet światłowodowy, woda i kanalizacja miejska. Wymienione media każdy właściciel lokalu rozlicza samodzielnie (tych kosztów indywidualnych nie obejmuje opłata do administratora wspólnoty).
AKTUALNY STAN ZAAWANSOWANIA:
Zakres wykonanych prac: płyty fundamentowe, konstrukcja budynku wraz ze stropami, ściany działowe, dach (konstrukcja wraz z pokryciem), instalacje (gazowe, elektryczne, kanalizacyjne), elewacja, stolarka okienna i drzwiowa, tynki. Uzyskano wszelkie formalne zgody niezbędne do realizacji przyłączy. Obecnie trwa budowa przyłączy.
Zakres prac do wykonania: instalacje ogrzewania wraz z montażem pieców, wylewki, przyłącza (wody, kanalizacji, gazu i energii elektrycznej), zagospodarowanie terenu. Całość kosztów przyłączenia i budowy sieci pokrywa deweloper. Dzięki temu terminy realizacji przyłączy są pewne i niezależne od dostawców mediów. Aktualnie rozpoczęto już prace przyłączeniowe, jednak ich tempo uzależnione jest od pogody. Planowany termin zakończenia prac przyłączeniowych przypada na kwiecień 2026.
OTOCZENIE:
Odległości pokazują rzeczywistą drogę do przebycia.
- Pętla autobusowa Piastów-Ogińskiego (linie 716, 717, N85) – 200 m (Google Maps nie pokazuje tej trasy)
- Stacja PKP Piastów – 2,1 km (10 minut jazdy autobusem z Pętli Piastów-Ogińskiego)
- Dokładna lokalizacja: 52.19300263345283, 20.828685186902444
- Publiczny żłobek, przedszkole i szkoła podstawowa – kompleks przy
- Jarzynowej w Pruszkowie – 1,2 km
- Szkoła podstawowa przy ul. Zbikowskiej w Piastowie – 0,7 km
- Sklep spożywczy – 1,3 km
- Przystanek autobusowy w Pruszkowie (ul. Tuwima, linie 3 i 9) – 1,2 km
- Biedronka – 2,2 km
- Park Kultury i Wypoczynku – 2,8 km
STANDARD DEWELOPERSKI:
- Ściany nośne – bloczki silikatowe
- Ściany nośne między sąsiadującymi ze sobą segmentami – podwójna warstwa bloczka silikatowego, co zapewnia doskonałą izolację akustyczną.
- Okna PVC klasy premium, na profilach marki VEKA o grubości 82 mm (najgrubszy profil Veka – lepsza izolacyjność termiczna, w standardzie profil wzmocniony). Okna trzyszybowe, 7-komorowe, 3 uszczelki, niezawodne okucia Winkhaus
- Ściany wewnętrzne – gazobeton/multigips (8 lub 10 cm)
- Ogrzewanie, ciepła woda użytkowa – w każdym lokalu indywidualny piec dwufunkcyjny z wbudowanym zasobnikiem. Ogrzewanie podłogowe + dodatkowo grzejnik łazienkowy.
- Osobne liczniki na wszystkie media (woda, prąd, gaz)
- Kuchnia – zasilanie trójfazowe (400V)
- Wszystkie budynki są oddzielone ogniomurami (niepalna ściana ponad połacią dachową)
- Tynki – gipsowe, bez gładzi
- Do lokali doprowadzona jest instalacja internetowa światłowodowa
- Biały montaż elektryczny – osprzęt polskiej produkcji (Simon)
- Salon – wyprowadzenie kompletu przewodów pod klimatyzację
- Proponowana dodatkowa ścianka jest wykonywana jako odpłatna zmiana lokatorska
DODATKOWE INFORMACJE:
Teren zamknięty, bramy na pilota oraz instalacja (przewody) do domofonu/wideofonu (urządzenie po stronie nabywcy lub do wykonania przez dewelopera, cena uzależniona od wybranego urządzenia).
Termin oddania zgodnie z umową deweloperską: 31 sierpnia 2026 r., zakończenie prac budowlanych w obrębie budynku: marzec 2026, po tym czasie będą trwać prace przyłączeniowe, budowa drogi wewnętrznej oraz chodników. Lokale będą wydawane najprawdopodobniej 2 miesiące przed terminem umownym. Aktualny stan zaawansowania prac 85%.
Miejsce postojowe dodatkowo płatne: 10 000 zł.
Do salonów doprowadzone zostały podtynkowo wszystkie przewody niezbędne do zamontowania klimatyzacji wraz z jednostką zewnętrzną (przewód zasilający, sterujący, rury w izolacji na czynnik chłodniczy oraz rura na odprowadzenie skroplin)
Każdy nabywca otrzymuje kupony rabatowe umożliwiające zakupy z 10% zniżką w sklepach Leroy Merlin oraz Castorama.
BEZPIECZEŃSTWO FINANSOWE:
Państwa pieniądze są chronione na każdym etapie inwestycji:
- Mieszkaniowe Rachunki Powiernicze: środki są wypłacane transzami dopiero po potwierdzeniu przez inspektora banku zakończenia danego etapu prac
- Deweloperski Fundusz Gwarancyjny: Każdy nabywca objęty jest dodatkowym systemem ochrony składek.
- Gwarancja de minimis: Nasze kredyty inwestycyjne zabezpieczone są przez Bank Gospodarstwa Krajowego (BGK), co stanowi dla Nabywców dodatkowe potwierdzenie naszej wiarygodności finansowej.
- Pełna ochrona ubezpieczeniowa: proces budowlany każdej inwestycji jest w całości ubezpieczony w Compensa TU S.A.
POMIAR POWIERZCHNI:
Zgodnie z aktualnymi przepisami i zasadami etyki, powierzchnie pod ściankami działowymi nie są wliczane do powierzchni użytkowej. Wymiary i powierzchnie zostały pomniejszone o grubość warstw tynkarskich.
DODATKOWE USŁUGI:
Oferujemy również bezpłatne pośrednictwo kredytowe. Od kredytobiorcy potrzebne są jedynie dokumenty związane z uzyskiwanym dochodem, całość dokumentacji mieszkania i inwestycji załatwiamy sami.
Zapraszamy do kontaktu w celu uzyskania szczegółowych informacji oraz umówienia prezentacji inwestycji.
Inwestycja realizowana jest przez „Apartamenty Paderewskiego 10” Sp. z o.o. NIP 7011205152 ul. Złota 75A/7, 00-819, Warszawa.
Spółka należy do przedsiębiorstwa „APB Development” Sp. z o.o. NIP 5273182155 ul. Złota 75A/7, 00-819, Warszawa.
Ogłoszenie ma charakter informacyjny i nie stanowi oferty handlowej w rozumieniu art. 66 § 1 Kodeksu cywilnego oraz innych właściwych przepisów prawnych.










Oferta
Mieszkanie 1A
2-pokojowe mieszkanie na parterze z ogródkiem 140 m2 z osobną prywatną bramą. W obrębie ogródka znajdują się dwa miejsca postojowe (w cenie). Ścianka wydzielająca trzeci pokój (z pełnowymiarowym oknem balkonowym) jest do wykonania jako zmiana lokatorska (dodatkowo płatna) zgodnie z wytycznymi nabywcy. Opcjonalna dodatkowa ścianka w kilku wariantach została oznaczona na rysunkach linią przerywaną.
Mieszkanie 2A
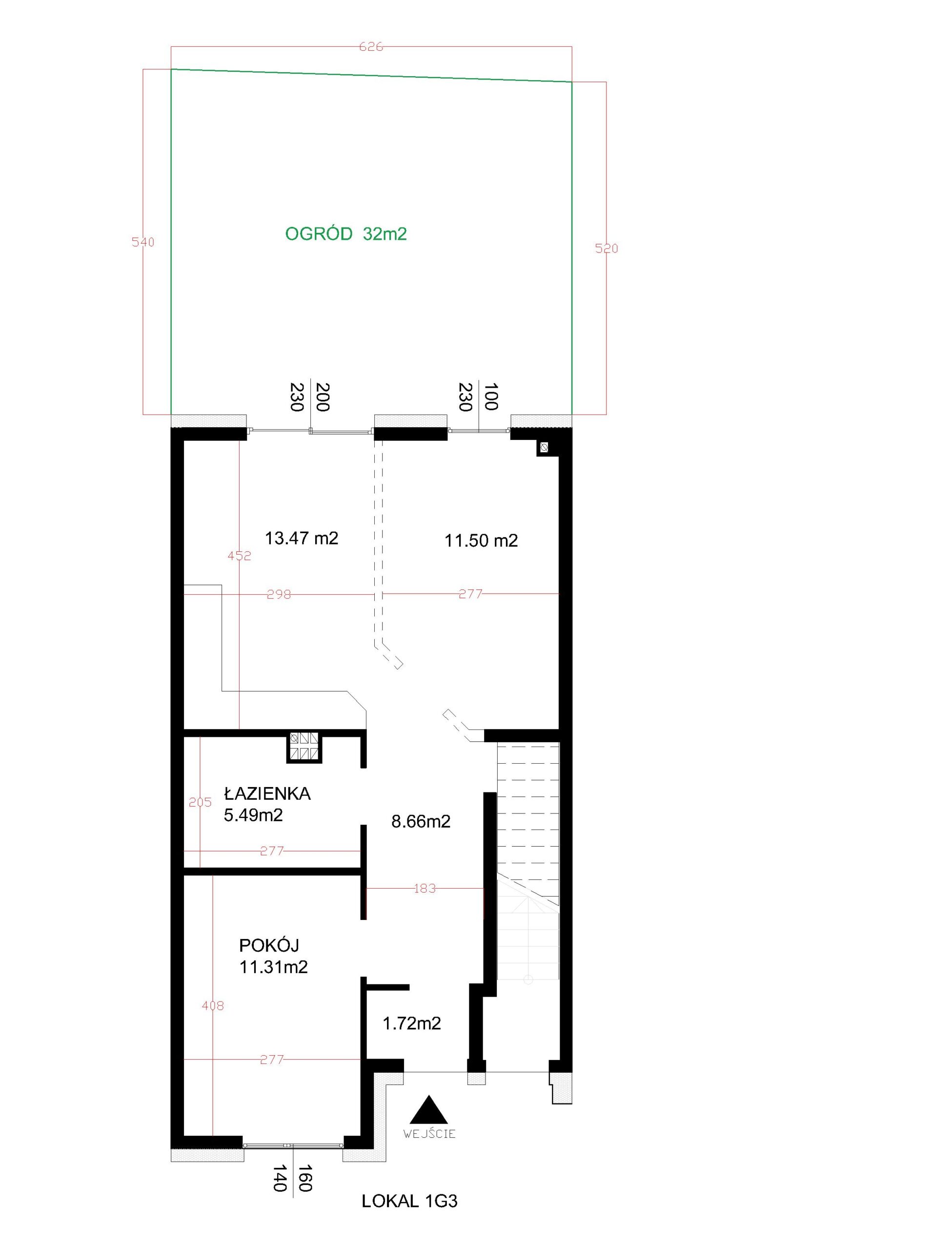
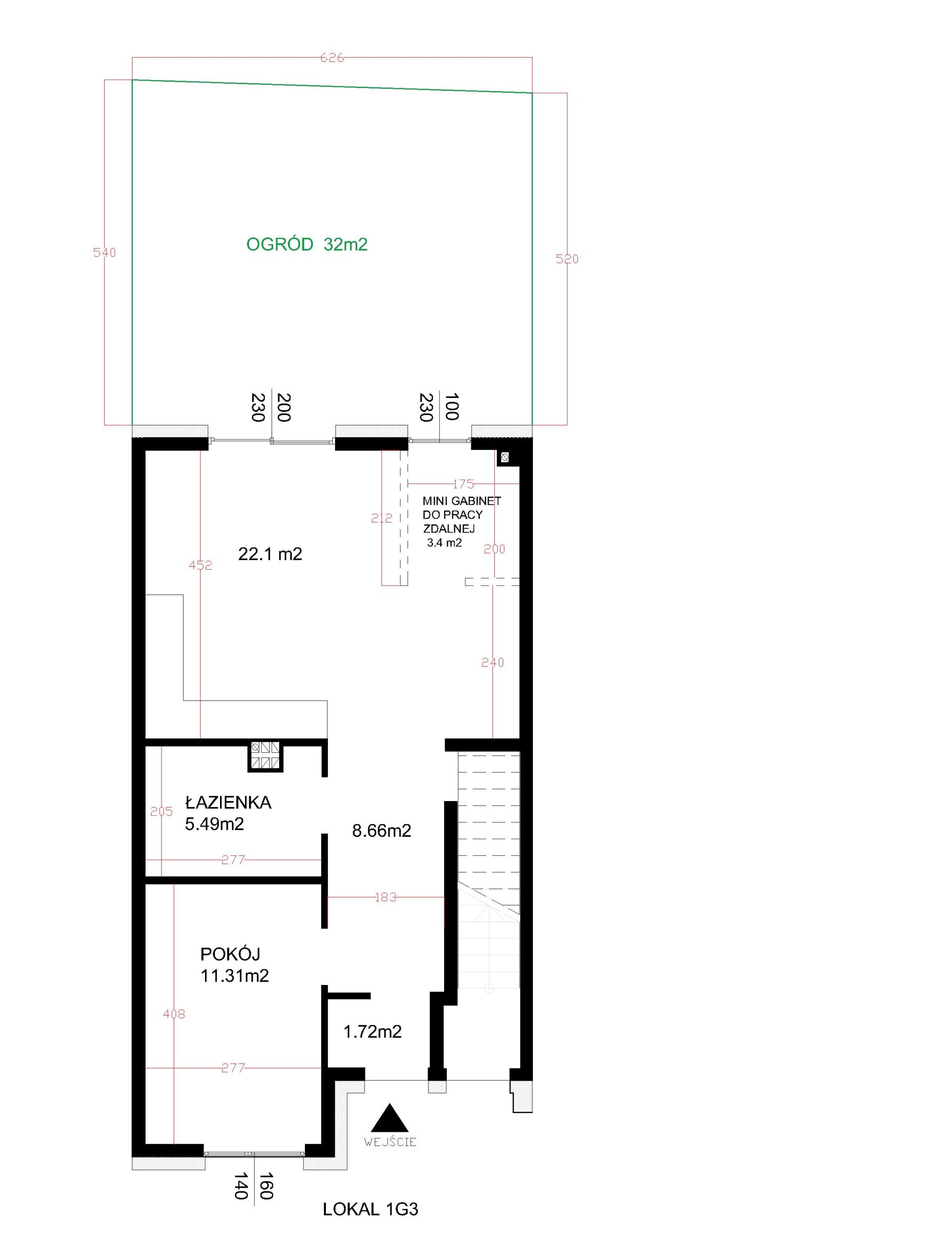
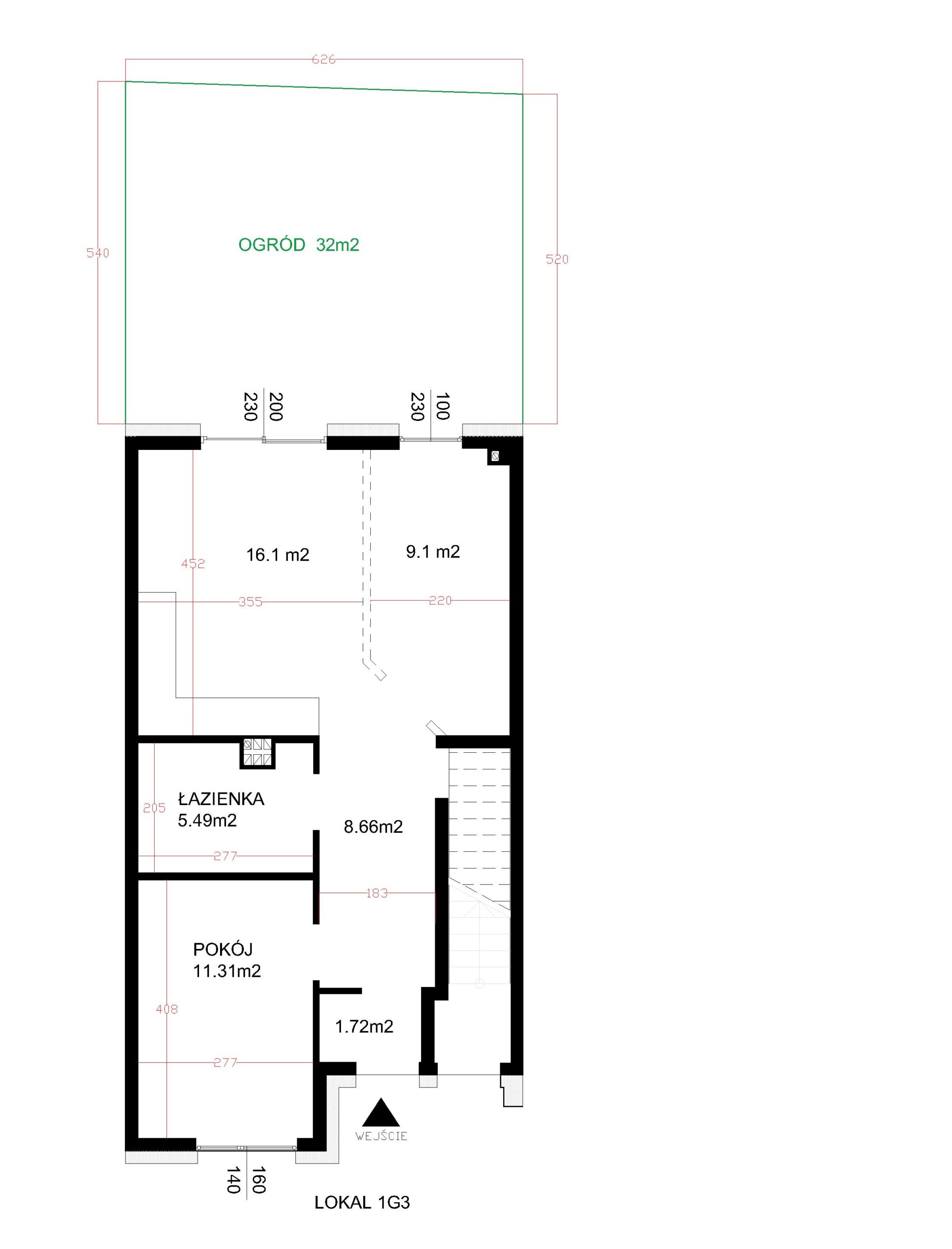
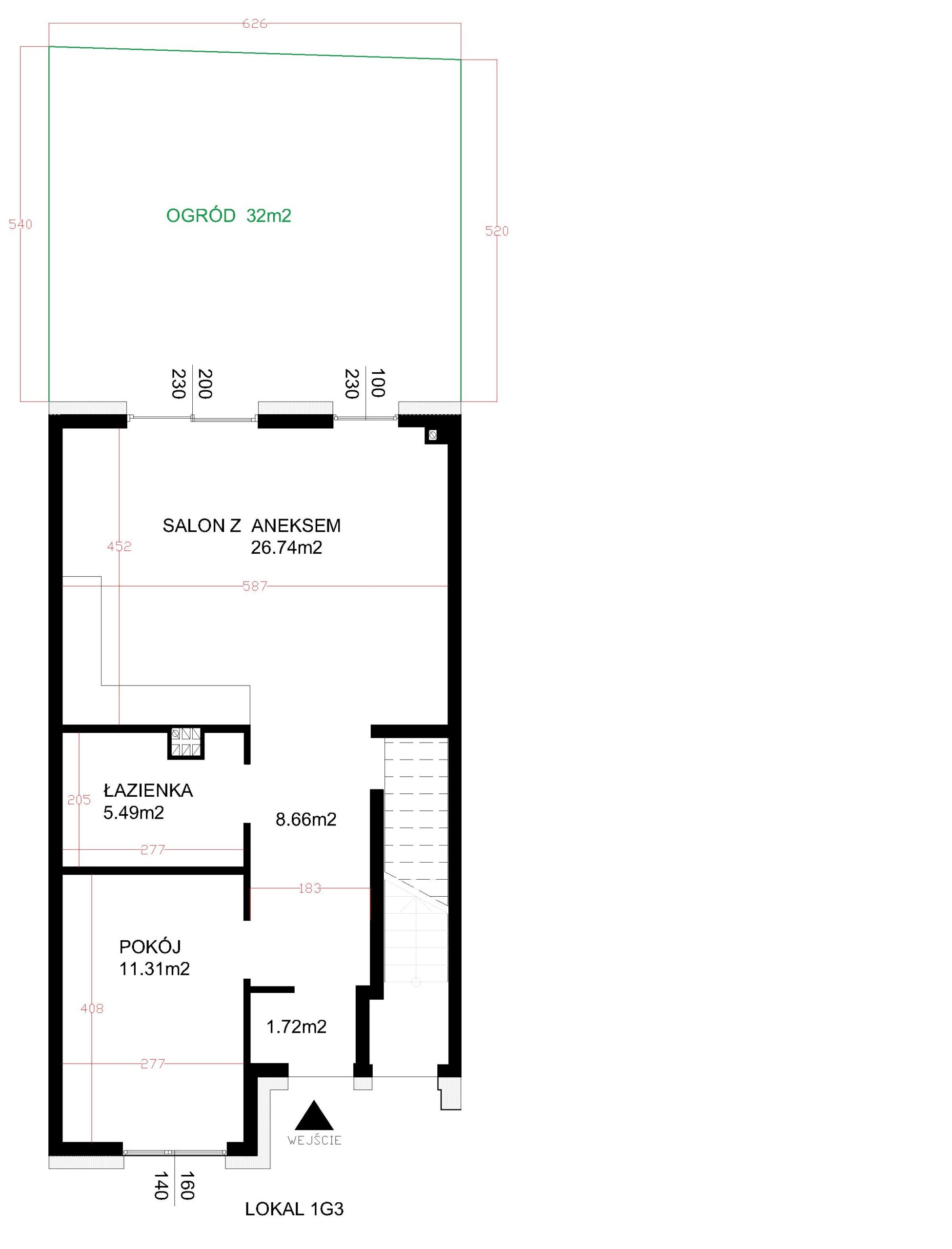
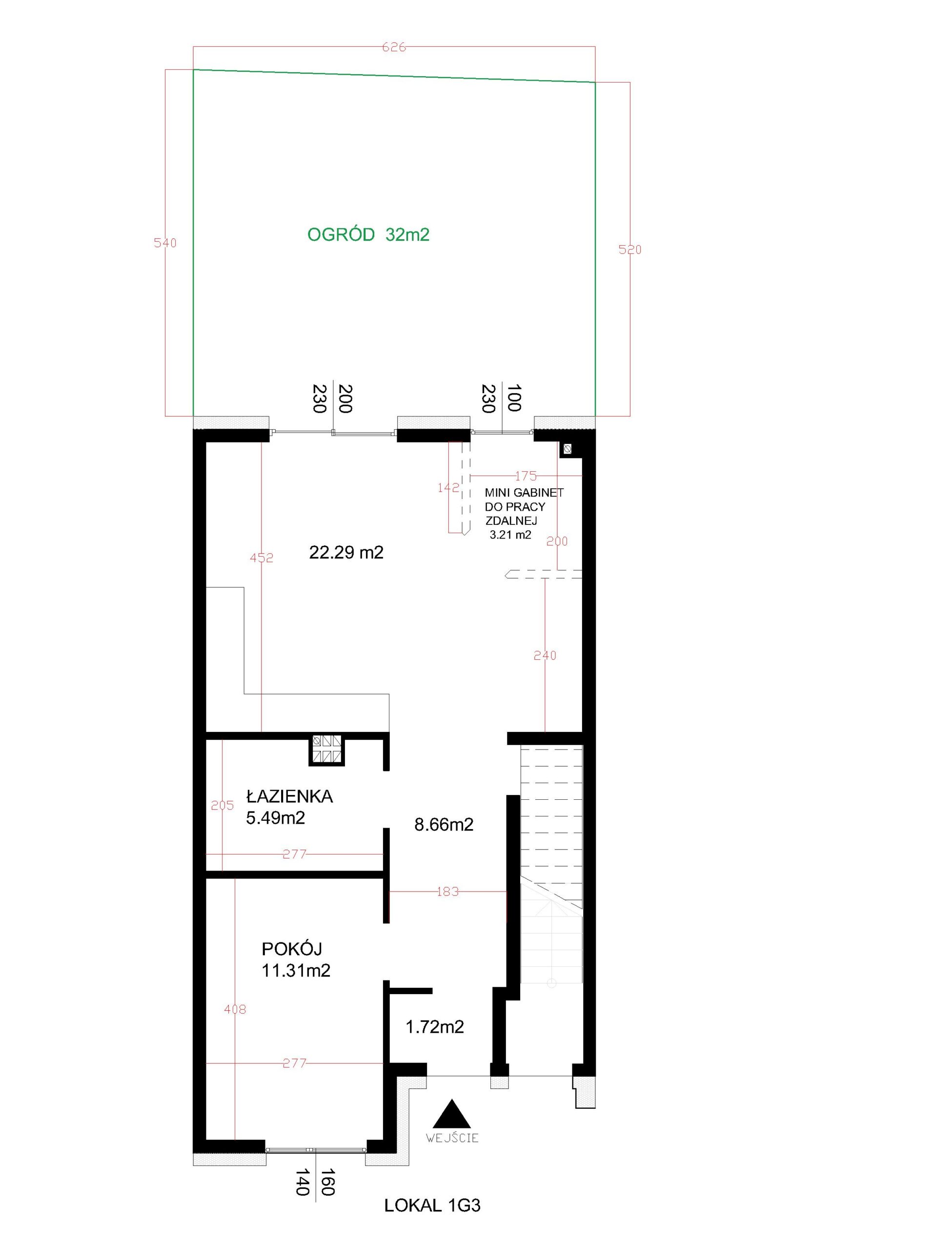
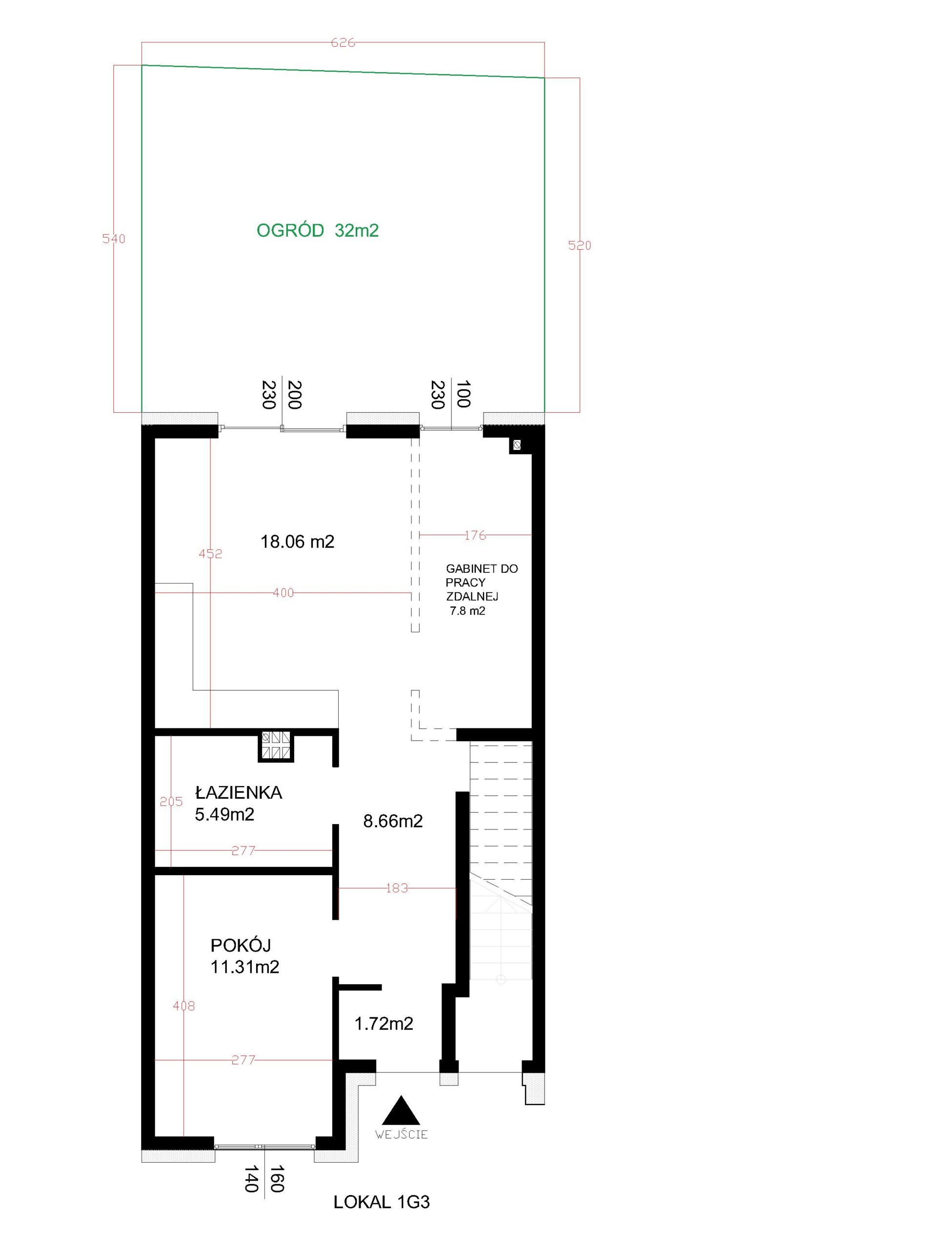
2-pokojowe mieszkanie na parterze z ogródkiem 32 m2 z możliwością wydzielenia trzeciego pokoju lub pomieszczenia do pracy zdalnej. Ścianka wydzielająca trzeci pokój (z pełnowymiarowym oknem balkonowym) jest do wykonania jako zmiana lokatorska (dodatkowo płatna) zgodnie z wytycznymi nabywcy.
Mieszkanie 3A
2-pokojowe mieszkanie na parterze z ogródkiem 31 m2 z możliwością wydzielenia trzeciego pokoju lub pomieszczenia do pracy zdalnej. Ścianka wydzielająca trzeci pokój (z pełnowymiarowym oknem balkonowym) jest do wykonania jako zmiana lokatorska (dodatkowo płatna) zgodnie z wytycznymi nabywcy.
Mieszkanie 4A
2-pokojowe mieszkanie na parterze z ogródkiem 30 m2 z możliwością wydzielenia trzeciego pokoju lub pomieszczenia do pracy zdalnej. Ścianka wydzielająca trzeci pokój (z pełnowymiarowym oknem balkonowym) jest do wykonania jako zmiana lokatorska (dodatkowo płatna) zgodnie z wytycznymi nabywcy.
Mieszkanie 5A
2-pokojowe mieszkanie na parterze z ogródkiem 28 m2 z możliwością wydzielenia trzeciego pokoju lub pomieszczenia do pracy zdalnej. Ścianka wydzielająca trzeci pokój (z pełnowymiarowym oknem balkonowym) jest do wykonania jako zmiana lokatorska (dodatkowo płatna) zgodnie z wytycznymi nabywcy.
Mieszkanie 6A
2-pokojowe mieszkanie na parterze z ogródkiem 27 m2 z możliwością wydzielenia trzeciego pokoju lub pomieszczenia do pracy zdalnej. Ścianka wydzielająca trzeci pokój (z pełnowymiarowym oknem balkonowym) jest do wykonania jako zmiana lokatorska (dodatkowo płatna) zgodnie z wytycznymi nabywcy.
Mieszkanie 2B
4-pokojowe mieszkanie nr 2B o powierzchni 52,13 m2 na piętrze w stanie deweloperskim + 31 m2 poddasze w stanie surowym (do adaptacji koszt ok. 95’000 netto) z balkonem 3,25 m2.
Mieszkanie 12A
11 999,26 zł/m² brutto
647 000,00 zł brutto
16.12.2025
11 498,52 zł/m² brutto
620 000,00 zł brutto
27.01.2026
11 776,71 zł/m² brutto
635 000,00 zł brutto
26.03.2026
Zewnętrzne miejsce postojoweopłata dodatkowa
8 130,08 złnetto
23%VAT
10 000,00 złbrutto
8 130,08 zł netto
10 000,00 zł brutto
08.01.2026
12 959,20 zł/m² brutto
698 760,11 zł brutto
08.01.2026
11 999,26 zł/m² brutto
647 000,00 zł brutto
08.01.2026
11 498,52 zł/m² brutto
620 000,00 zł brutto
27.01.2026
0,00 zł/m² brutto
0,00 zł brutto
27.03.2026
Zewnętrzne miejsce postojoweopłata dodatkowa
0,00 złnetto
23%VAT
0,00 złbrutto
8 130,08 zł netto
10 000,00 zł brutto
08.01.2026
8 130,08 zł netto
10 000,00 zł brutto
09.01.2026
0,00 zł netto
0,00 zł brutto
27.03.2026
11 792,56 zł/m² brutto
523 000,00 zł brutto
26.01.2026
11 927,85 zł/m² brutto
529 000,00 zł brutto
29.01.2026
Zewnętrzne miejsce postojoweopłata dodatkowa
8 130,08 złnetto
23%VAT
10 000,00 złbrutto
8 130,08 zł netto
10 000,00 zł brutto
26.01.2026
11 500,65 zł/m² brutto
620 000,00 zł brutto
27.01.2026
12 428,12 zł/m² brutto
670 000,00 zł brutto
27.01.2026
13 170,10 zł/m² brutto
710 000,00 zł brutto
24.02.2026
13 262,85 zł/m² brutto
715 000,00 zł brutto
05.03.2026
13 355,59 zł/m² brutto
720 000,00 zł brutto
06.03.2026
Zewnętrzne miejsce postojoweopłata dodatkowa
0,00 złnetto
23%VAT
0,00 złbrutto
8 130,08 zł netto
10 000,00 zł brutto
27.01.2026
0,00 zł netto
0,00 zł brutto
25.02.2026
11 498,52 zł/m² brutto
620 000,00 zł brutto
27.01.2026
0,00 zł/m² brutto
0,00 zł brutto
27.03.2026
Zewnętrzne miejsce postojoweopłata dodatkowa
0,00 złnetto
23%VAT
0,00 złbrutto
8 130,08 zł netto
10 000,00 zł brutto
27.01.2026
0,00 zł netto
0,00 zł brutto
27.03.2026
11 498,52 zł/m² brutto
620 000,00 zł brutto
27.01.2026
11 591,25 zł/m² brutto
625 000,00 zł brutto
05.03.2026
11 683,98 zł/m² brutto
630 000,00 zł brutto
06.03.2026
11 776,71 zł/m² brutto
635 000,00 zł brutto
27.03.2026
11 776,71 zł/m² brutto
635 000,00 zł brutto
27.03.2026
Zewnętrzne miejsce postojoweopłata dodatkowa
8 130,08 złnetto
23%VAT
10 000,00 złbrutto
8 130,08 zł netto
10 000,00 zł brutto
27.01.2026
8 130,08 zł netto
10 000,00 zł brutto
27.03.2026
11 498,52 zł/m² brutto
619 999,99 zł brutto
27.01.2026
11 498,52 zł/m² brutto
620 000,00 zł brutto
27.01.2026
11 498,52 zł/m² brutto
620 000,00 zł brutto
26.02.2026
0,00 zł/m² brutto
0,00 zł brutto
27.03.2026
Zewnętrzne miejsce postojoweopłata dodatkowa
0,00 złnetto
23%VAT
0,00 złbrutto
8 130,08 zł netto
10 000,00 zł brutto
27.01.2026
8 130,08 zł netto
10 000,00 zł brutto
26.02.2026
0,00 zł netto
0,00 zł brutto
27.03.2026
11 498,61 zł/m² brutto
577 000,00 zł brutto
27.01.2026
11 598,25 zł/m² brutto
582 000,00 zł brutto
05.03.2026
11 697,89 zł/m² brutto
587 000,00 zł brutto
06.03.2026
Zewnętrzne miejsce postojoweopłata dodatkowa
8 130,08 złnetto
23%VAT
10 000,00 złbrutto
8 130,08 zł netto
10 000,00 zł brutto
27.01.2026
11 503,19 zł/m² brutto
577 000,00 zł brutto
27.01.2026
11 602,87 zł/m² brutto
582 000,00 zł brutto
05.03.2026
11 702,55 zł/m² brutto
587 000,00 zł brutto
06.03.2026
Zewnętrzne miejsce postojoweopłata dodatkowa
8 130,08 złnetto
23%VAT
10 000,00 złbrutto
8 130,08 zł netto
10 000,00 zł brutto
27.01.2026
11 549,24 zł/m² brutto
577 000,00 zł brutto
27.01.2026
11 649,32 zł/m² brutto
582 000,00 zł brutto
05.03.2026
11 749,40 zł/m² brutto
587 000,00 zł brutto
06.03.2026
Zewnętrzne miejsce postojoweopłata dodatkowa
8 130,08 złnetto
23%VAT
10 000,00 złbrutto
8 130,08 zł netto
10 000,00 zł brutto
27.01.2026
11 792,56 zł/m² brutto
523 000,00 zł brutto
27.01.2026
11 927,85 zł/m² brutto
529 000,00 zł brutto
29.01.2026
11 927,85 zł/m² brutto
529 000,00 zł brutto
09.02.2026
Zewnętrzne miejsce postojoweopłata dodatkowa
8 130,08 złnetto
23%VAT
10 000,00 złbrutto
8 130,08 zł netto
10 000,00 zł brutto
27.01.2026
8 130,08 zł netto
10 000,00 zł brutto
09.02.2026
11 734,35 zł/m² brutto
523 000,00 zł brutto
27.01.2026
12 788,87 zł/m² brutto
570 000,00 zł brutto
27.01.2026
Zewnętrzne miejsce postojoweopłata dodatkowa
8 130,08 złnetto
23%VAT
10 000,00 złbrutto
8 130,08 zł netto
10 000,00 zł brutto
27.01.2026
14 770,77 zł/m² brutto
770 000,00 zł brutto
19.02.2026
14 866,68 zł/m² brutto
775 000,00 zł brutto
05.03.2026
14 962,59 zł/m² brutto
780 000,00 zł brutto
06.03.2026
Zewnętrzne miejsce postojoweopłata dodatkowa
8 130,08 złnetto
23%VAT
10 000,00 złbrutto
8 130,08 zł netto
10 000,00 zł brutto
19.02.2026
Przedstawione informacje „nie stanowią oferty w rozumieniu Kodeksu cywilnego, lecz są zaproszeniem do zawarcia umowy.